Skolemoduler for et godt studiemiljø
Skolemoduler fra MG Link er konstruert slik at også det midlertidige holder svært høy og varig kvalitet. Et viktig fokus i våre skolemoduler har vært å oppnå best mulig stillhet inne i skolepaviljongenes lokaler. Med ekstra god lydkvalitet, som faktisk er et av de mest krevende byggetekniske målene å oppnå, skapes forutsetninger for et godt skolemiljø.
For å kunne tilby dette utviklet vi den nye modulserien Comfort, der vi i hver del – fra gulv, vegger og tak til vinduer og ventilasjon – har tilpasset materialer og byggetekniske løsninger for å skape så stille rom og så høy lydkomfort som mulig.
Skolepaviljongens moduler kan utstyres for særskilte krav
Skolemodulene krever normalt ingen spesiell innredning – de viktigste kvalitetene ligger innebygd i konstruksjonen av gulv, vegger og tak. Etter nærmere 25 års erfaring med å montere midlertidige skoler med våre skolemoduler, har vi imidlertid bygget opp en solid verktøykasse som kan brukes på nesten alle skoler. Samtidig finnes det alltid spesielle behov, som særskilte krav i sløydsaler, musikkrom, laboratorier og rom for estetiske fag.
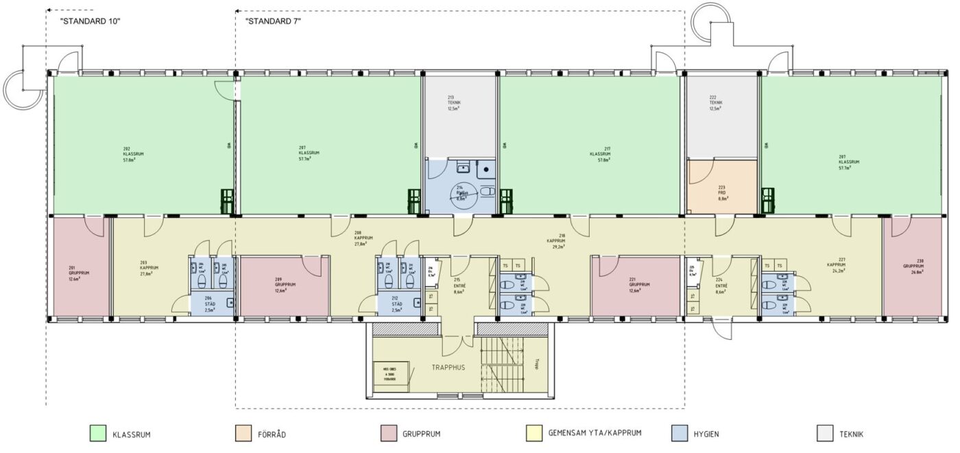
Standardoppsett
Vi skreddersyr våre oppsett etter virksomhetens behov ved hjelp av våre standardmoduler. Det minste oppsettet med Comfort består av fire moduler, og deretter kan man bygge akkurat så stort eller lite man ønsker.
Vårt modulsystem Comfort muliggjør innvendig kommunikasjon gjennom hele bygget, komfortabelt for elevene og enkelt å vedlikeholde for virksomheten. Klikk på bildet for en versjon i høyere oppløsning.
Eksempler på skoler:
Uansett hvilken type utdanningslokaler dere trenger i prosjektet, kan MG Link med sin brede kompetanse levere moduler av høy kvalitet i den standarden dere etterspør.
